物件詳細

(仮称)港区芝浦一丁目ビル 1~2F

賃料 協議
交通 都営三田線「三田駅」徒歩9分
所在地 東京都港区芝浦1-12-7
物件種別 敷金
新築貸店舗 協議
 
画像をクリックすると拡大画像が表示されます。

物件概要 overview

所在地 東京都港区芝浦1-12-7
物件種別 新築貸店舗
物件名 (仮称)港区芝浦一丁目ビル 1~2F
現テナント名 着工前
業種 飲食可
地域 旧海岸通り沿い
交通 都営三田線「三田駅」徒歩9分
構造 未定
内装 スケルトン渡し
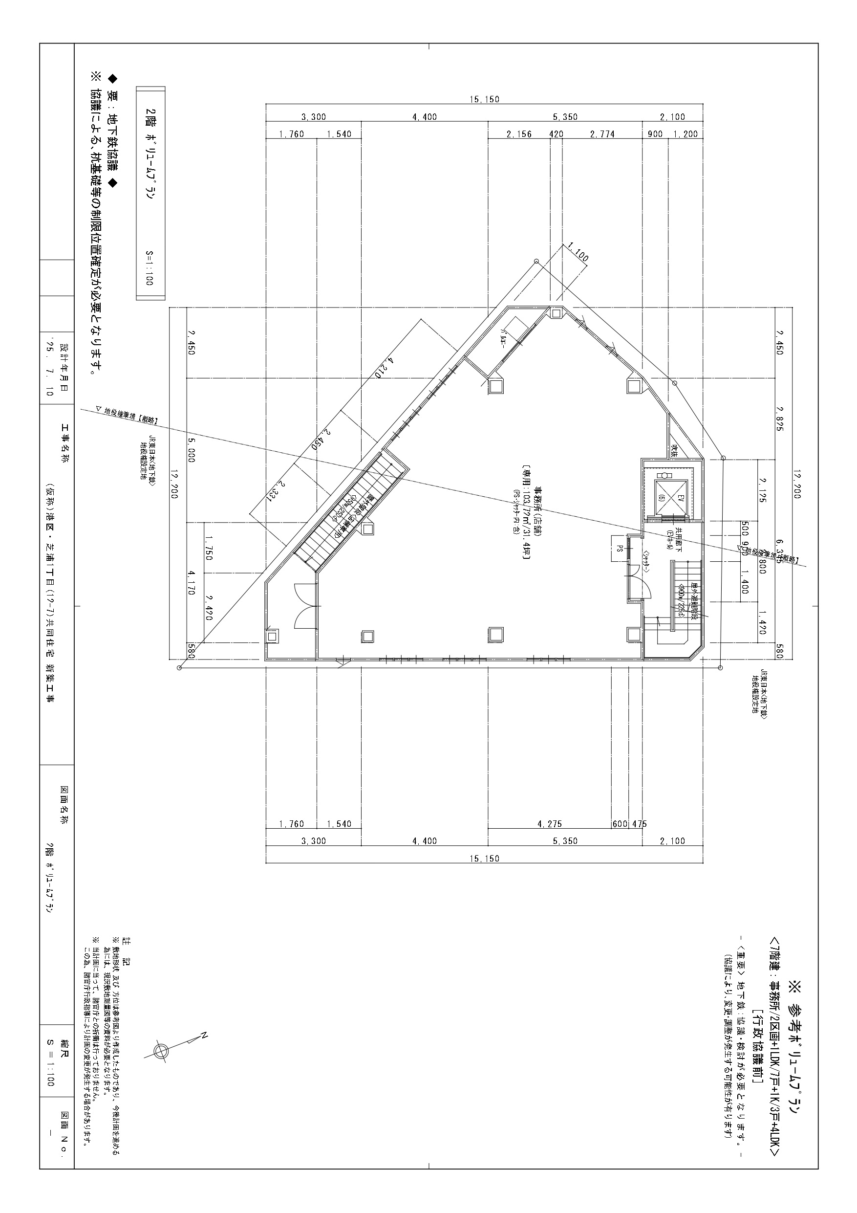
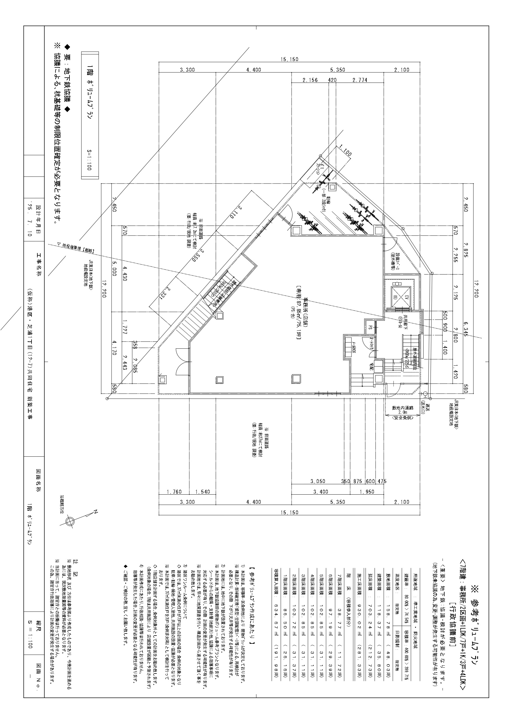
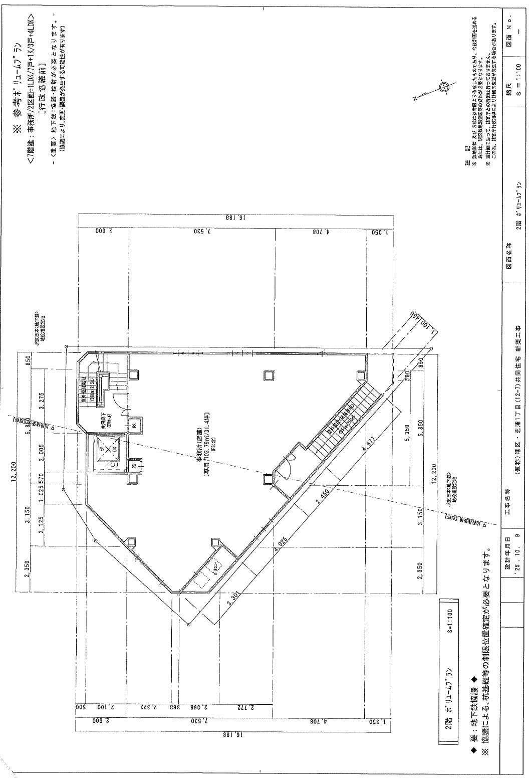
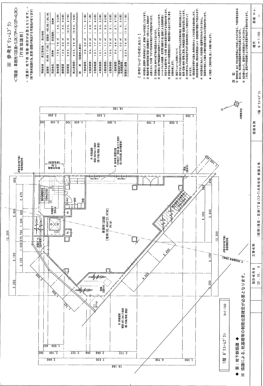
階号 1~2F(各階貸し可)
契約面積 196.27m² 59.37坪
造作譲渡 ******
敷金 協議
賃料 協議
備考 ■各階面積:
2F:103.79㎡(約31.4坪)
1F:92.48㎡(約27.97坪)
3F以降は共同住宅の計画予定
■竣工:2027年3月末(予定)
物件No 10397

近くの交通機関 navigation

Loading...

学区エリア scholl district

(仮称)港区芝浦一丁目ビル 1~2Fはの学区エリアです。

左のタブで小学校、中学校の学区エリアの切り替えができます。

(仮称)港区芝浦一丁目ビル 1~2F周辺の学校一覧

用途地域 use district

(仮称)港区芝浦一丁目ビル 1~2Fはです

(仮称)港区芝浦一丁目ビル 1~2Fの区分項目

ストリートビュー street view

当ホームページの物件ついてのお問い合わせはこちらからお寄せ下さい。
お電話でのお問い合わせ
03-6435-5275
株式会社 青山建物インベストメント
〒107-0052 東京都港区赤坂7-6-11 赤坂台マンション603号室
東京都知事(5)第82344号
メールフォームでのお問い合わせ

下の空欄に記入して、送信ボタンを一度だけ押してください。
フォーム送信後、ご入力したメールアドレス宛に自動でお問い合わせ内容の控えが届きます。
入力された個人情報は当社個人情報保護方針に基づき取り扱われることに同意するものとします。
」は必須項目です。

物件名
お名前

お名前をご入力ください。例)山田 太郎

メールアドレス

メールアドレスを半角英数字にてご入力ください。例)info@sample.com

電話番号

電話番号をご入力ください。例)03-1234-5678

ご希望内容をチェックして下さい
ご質問・ご要望

ご質問・ご相談などご自由に入力してください

Fudousan Plugin Ver.1.7.2