-
03-6435-5275
- 株式会社 青山建物インベストメント
〒107-0052 東京都港区赤坂7-6-11 赤坂台マンション603号室 - 東京都知事(5)第82344号
下の空欄に記入して、送信ボタンを一度だけ押してください。
フォーム送信後、ご入力したメールアドレス宛に自動でお問い合わせ内容の控えが届きます。
入力された個人情報は当社個人情報保護方針に基づき取り扱われることに同意するものとします。
「※」は必須項目です。
| 価格 | 協議 |
|---|---|
| 交通 | 京王線「府中駅」徒歩01分 JR南武線「府中本町駅」徒歩09分 |
| 所在地 | 府中市宮町一丁目100番地 |
| 物件種別 | 用途 | 構造・規模 | 建築年月日 |
|---|---|---|---|
| 売区分所有店舗 | 店舗 | 鉄骨鉄筋コンクリート造1階建 | 2017年4月24日 |
| 物件種別 | 売区分所有店舗 |
|---|---|
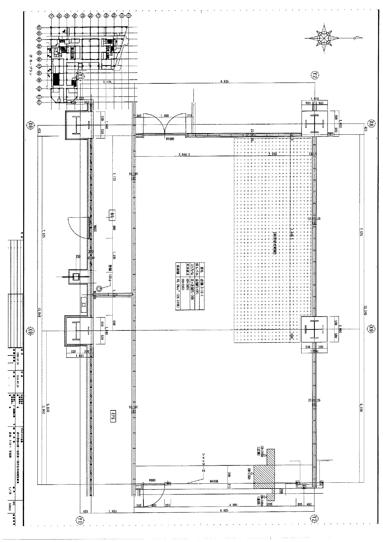
| 物件名 | 武蔵府中 LE SIGNE 2F 13-1区画 |
| 地番 | 府中市宮町一丁目100番 |
| 住居表示 | 府中市宮町一丁目100番地 |
| 交通 | 京王線「府中駅」徒歩01分 JR南武線「府中本町駅」徒歩09分 |
| 地目 | 宅地 |
| 現況面積 | 6731.62m² 2036.31坪 公簿 |
| 接面道路 | 東側公道:幅員約20~60m、南側公道:幅員約12m、西側公道:幅員約26.3m |
| 家屋番号 | 宮町一丁目100番の213 |
| 用途 | 店舗 |
| 構造・規模 | 鉄骨鉄筋コンクリート造1階建 |
| 延床面積 | 91.59m² 27.71坪 |
| 建築年月日 | 2017年4月24日 |
|---|---|
| 利用状況 | 賃貸募集中 |
| 用途地域 | 商業地域 |
| 建ぺい率 | 80% |
| 容積率 | 600% |
| 防火地域 | 防火地域 |
| 高度地区 | なし |
| 日影規制 | なし |
| 設備 | 東京電力・公営水道・都市ガス・公共下水 |
| 価格 | 協議 |
| 備考 | ■施設内駐車場:市営駐車場480台 ■2Fは府中駅南口よりペデストリアンデッキにて直結フロアです。 ■高度利用地区:府中駅南口地区(告示)昭和57年12月12日 府中市告示第61号 建蔽率の最高限度90%、容積率の最高限度650%、建築面積の最低限度300㎡、容積率の最低限度300% ■市街地再開発促進区域:府中駅南口地区市街地再開発促進区域(告示)昭和57年12月2日 府中市告示第62号 ■市街地再開発事業区域:府中駅南口地区第一種市街地再開発事業(告示)平成28年5月27日 府中市告示第90号 ■風致地区 ■宅地造成等工事規制区域 ■景観計画区域:景観形成推進地区(大國魂神社・けやき並木周辺地区) |
| 物件No | 276 |
武蔵府中 LE SIGNE 2F 13-1区画はの学区エリアです。
武蔵府中 LE SIGNE 2F 13-1区画周辺の学校一覧
武蔵府中 LE SIGNE 2F 13-1区画はです
武蔵府中 LE SIGNE 2F 13-1区画の区分項目
下の空欄に記入して、送信ボタンを一度だけ押してください。
フォーム送信後、ご入力したメールアドレス宛に自動でお問い合わせ内容の控えが届きます。
入力された個人情報は当社個人情報保護方針に基づき取り扱われることに同意するものとします。
「※」は必須項目です。